Projekty zahrad
Návrh kompozice zahrady je v dalších krocích projekčního procesu upřesňován a rozpracován do potřebných detailů. Technické výkresy stavebních objektů, osazovací plány, materiály a konstrukce detailů jsou na základě architektonického návrhu dále upřesňovány s odbornými profesanty a konkrétními dodavateli technologií.

Situace zahrady mateřské školy.

Situace zahrady domova pro seniory.

Situace zahradního parteru u víkendového domu.

Situace zahrady u domu pro starší manželský pár s okružní cestou na parteru.

Situace zahradního parteru u venkovského domu.

Situace parteru zahrady s koupacím biotopem.

Situace a řezy koupacího biotopu.

Situace zahrady u řadového rodinného domu.

Situace zahrady v městské zástavbě rodinných domů.

Situace zahrady domu na okraji města.

Situace a zóny koupacího biotopu.

Situace a řezy koupacího biotopu.

Situace zahrady s altánem u domu ve městě.

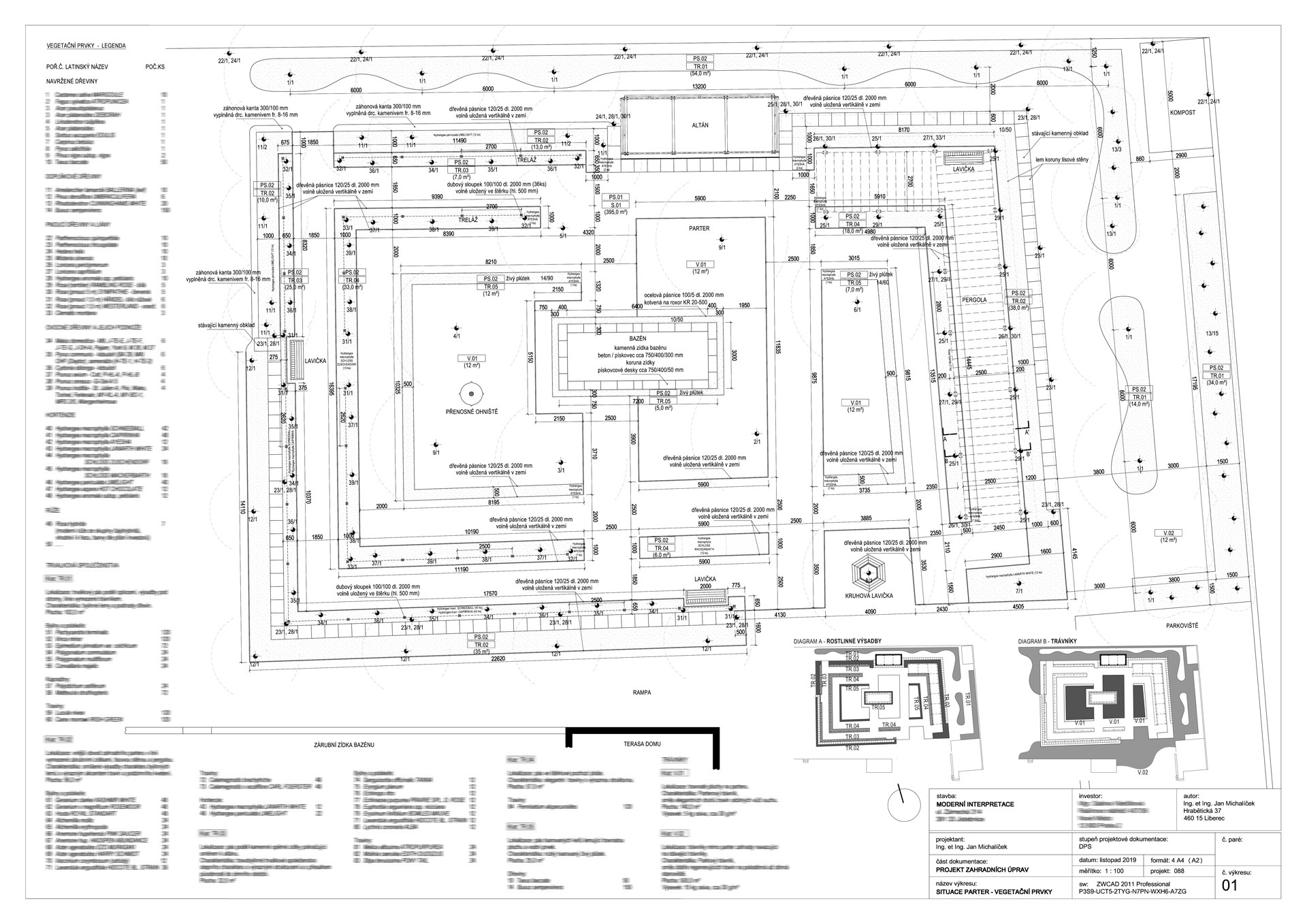
Situace zahrady s bazénem u domu ve městě.

Situace vodního prvku a dřevěného pobytového mola na parteru zahrady.